Labinrichting conform COVID-maatregel - Labinsights

Labinrichting conform COVID-maatregel

icon.highlightedarticle.dark Tech & Analyse
Laatste wijziging: 8 mei 2023
Article image of: Labinrichting conform COVID-maatregel

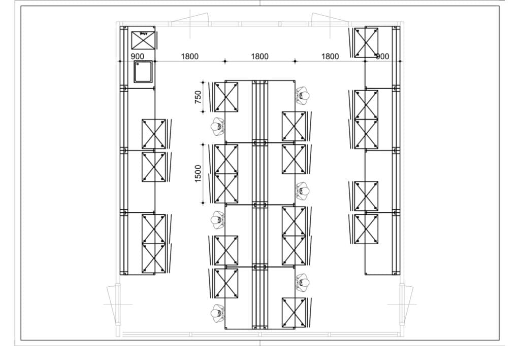
Door gebruik te maken van stalen tafelframes met verrijdbare onderbouwcontainers is met een 150 cm tafelraster een “COVID-maatregel-conforme” opstelling te creëren. Door de verrijdbare onderbouwcontainers deels onder de tafelbladen uit te trekken, wordt een werkplek tijdelijk geblokkeerd en kan 1,5 meter werkafstand gerespecteerd worden.
Het oppervlak van de bovenzijde van de rolcontainer kan door de laborant zelfs als tijdelijk extra “werkblad” gebruikt worden.

Peter van Heesewijk – Laboratoriumadvies & ontwerp -L3Q

Geschreven door

L3Q - Les Trois Quartiers bv

Lees meer